Bilocale in vendita

Pavia, Via Paolo Gorini - Santa Teresa
€ 119.000
2 locali 2 locali
62 Mq 62 Mq
1 bagno 1 bagno

Bilocale in vendita

Pavia, Via Paolo Gorini - Santa Teresa

Descrizione annuncio

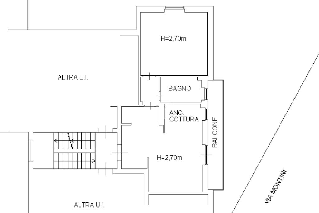
Via Gorini: In zona vicino al centro e ben servita, proponiamo in vendita un ampio bilocale di 62 mq sito al 2° e ultimo piano composto da: ingresso su ampio disimpegno con armadiatura a muro, luminoso soggiorno con angolo cottura a vista con affaccio sun ampio balcone, disimpegno notte che conduce alla spaziosa camera da letto matrimoniale e al bagno finestrato con box doccia. Cantina al piano seminterrato. L'immobile è dotato di aria condizionata in tutti gli ambienti, porta blindata, zanzariere, infissi in pvc/doppio vetro con apertura a vastisas recentemente rivisti. L'appartamento viene proposto in vendita completo di arredo.

CONTESTO: Stabile di fine anni '60 composto da 3 piani fuori terra. Riscaldamento centralizzato con termovalvole già installate.

ZONA: zona residenziale e ben servita, a poca distanza dal centro ma comoda per raggingere diversi punti della città .

Mostra tutto

Caratteristiche

Rif.:
61193962
Piano:
2 di 3 (Piano alto)
Balconi:
1
Camere da letto:
1
Arredamento:
Completo
Condizionamento:
Autonomo
Mostra tutto
Prezzo Prezzo
€ 119.000
Rata mutuo Rata mutuo
€ 561 / mese
Spese annue Spese annue
€ 1.300
Proponi il tuo prezzoProponi il tuo prezzo

Classe Energetica

F
F
F
F
F
F
F
F
F
EP globale non rinnovabile:
345.16 kW h/m² anno
EP invernale del fabbricato:
EP estiva del fabbricato:
Anno di costruzione:
1967
Riscaldamento:
Centralizzato
Tipo impianto:
A radiatori
Tipo alimentazione:
Metano

Ti interessa visionare l'immobile?

Fissa un appuntamento  Fissa un appuntamento

Richiedi informazioni

Clicca su Leggi per aprire l'informativa
* Questi campi sono obbligatori

Calcola il tuo mutuo

Semplice e senza impegno
Anticipo

( % )
Mutuo

( % )

pochi semplici passi

inserisci i tuoi dati
Questionario completato
Grazie per aver richiesto un appuntamento senza impegno con un nostro Consulente del Credito e Assicurativo.

Hai inserito correttamente tutti i dati necessari e a breve riceverai una e-mail con un link da convalidare per inviare i tuoi dati.
Affiliato
Studio Pavia Tre D.I.
Viale Cremona, 138/E 27100 Pavia (PV)

Il nostro staff


  • Beniamino Rampino
    Affiliato

  • Alex Lanticina
    Responsabile

  • Maria Renna
    Responsabile
Viale Cremona, 138/E 27100 Pavia (PV)
Zona: Centro - Viale Cremona - S.Teresa - Trovamala
Mostra su mappa
Orari: Dal Lunedì al Venerdì 9.00-12.30 14.30-19.30 Sabato su appuntamento
Affiliato
Studio Pavia Tre D.I.
Viale Cremona, 138/E 27100 Pavia (PV)

2026 Tecnocasa Franchising S.p.A. - P. IVA 08365160152 - Via Monte Bianco 60/A 20089 Rozzano (MI). Ogni agenzia ha un proprio titolare ed è autonoma. Privacy policy | Policy utilizzo | Cookie policy